Elemente modulare

Elementele modulare sunt componente individuale utilizate în construcția căminelor ce oferă flexibilitate datorită asamblării de tip „lego” pentru crearea structurilor personalizate.

Acestea sunt proiectate pentru a fi ușor de transportat, montat și integrat în diverse cerințe specifice ale proiectelor sau tipuri de rețele subterane.

Elementele modulare sunt o soluție inovatoare pentru proiectele ce necesită rapiditate, flexibilitate și rezistență în timp, combinând avantajele tehnologice cu cerințele practice date de infrastructura subterană.
Modularitatea este o caracteristică avantajoasă, deoarece configurația unui proiect sau a unei construcții se poate schimba oricând, fără a fi necesară demolarea

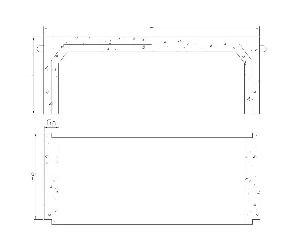
Cod Produs Denumire Produs Dimensiuni (mm) Greutate ( kg ) Pret PDF PDF
L l H g Declarație Fisa Tehnica
CVEC11500500700120 CAMIN VANE ELEMENT C1 L1500/l500/H700/G120 1500 500 700 120 552 794 13369.pdf CVEC11500500700120.pdf
CVEC215001000700120 CAMIN VANE ELEMENT C2 L1500/l1000/H700/G120 1500 1000 700 120 753 1059 13369.pdf CVEC215001000700120.pdf
CVEC315001200700120 CAMIN VANE ELEMENT C3 L1500/l1200/H700/G120 1500 1200 700 120 1183 1191 13369.pdf CVEC315001200700120.pdf
CVEC415001500700120 CAMIN VANE ELEMENT C4 L1500/l1500/H700/G120 1500 1500 700 120 1370 1326 13369.pdf -
Dumar Construct este o companie românească înființată în 1994 care produce prefabricate din beton customizabile conform celor mai înalte standarde de calitate, menite să răspundă tuturor cerințelor constructorilor din șantierele în continuă evoluție.